Our Services
Building Surveyor Services in Edinburgh
From a single residential floor plan to a full commercial measured survey, we deliver accurate, CAD-ready building drawings at speed. Every survey uses AI-powered handheld LiDAR scanning — no tripods, no disruption, no long waits.
Service 01
Measured Floor Plans
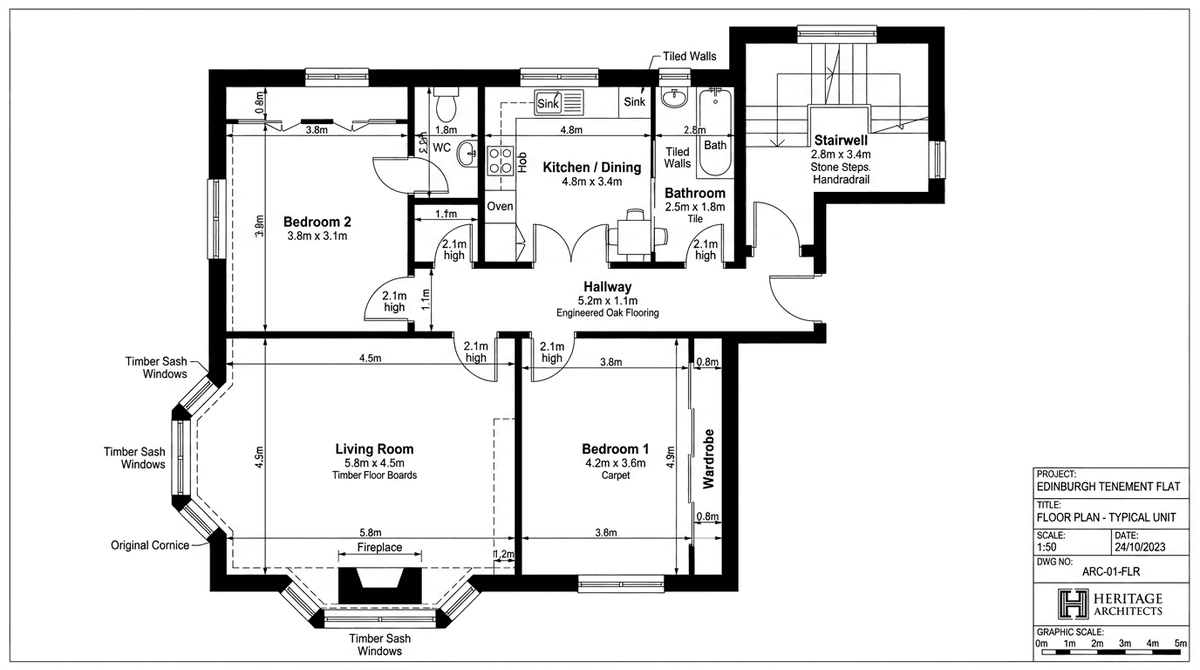
Accurate 2D floor plans showing walls, doors, windows, staircases, and structural features. Delivered in DXF, DWG, and PDF formats.
Our AI auto-detects architectural elements and generates draft plans in real time during the scan. These are then refined with precise dimensions and room labels.
What’s Included
- Wall positions & thicknesses
- Door swings & openings
- Window openings
- Staircase outlines
- Structural columns & features
- Room dimensions & labels
- GIA calculations
Ideal For


Service 02
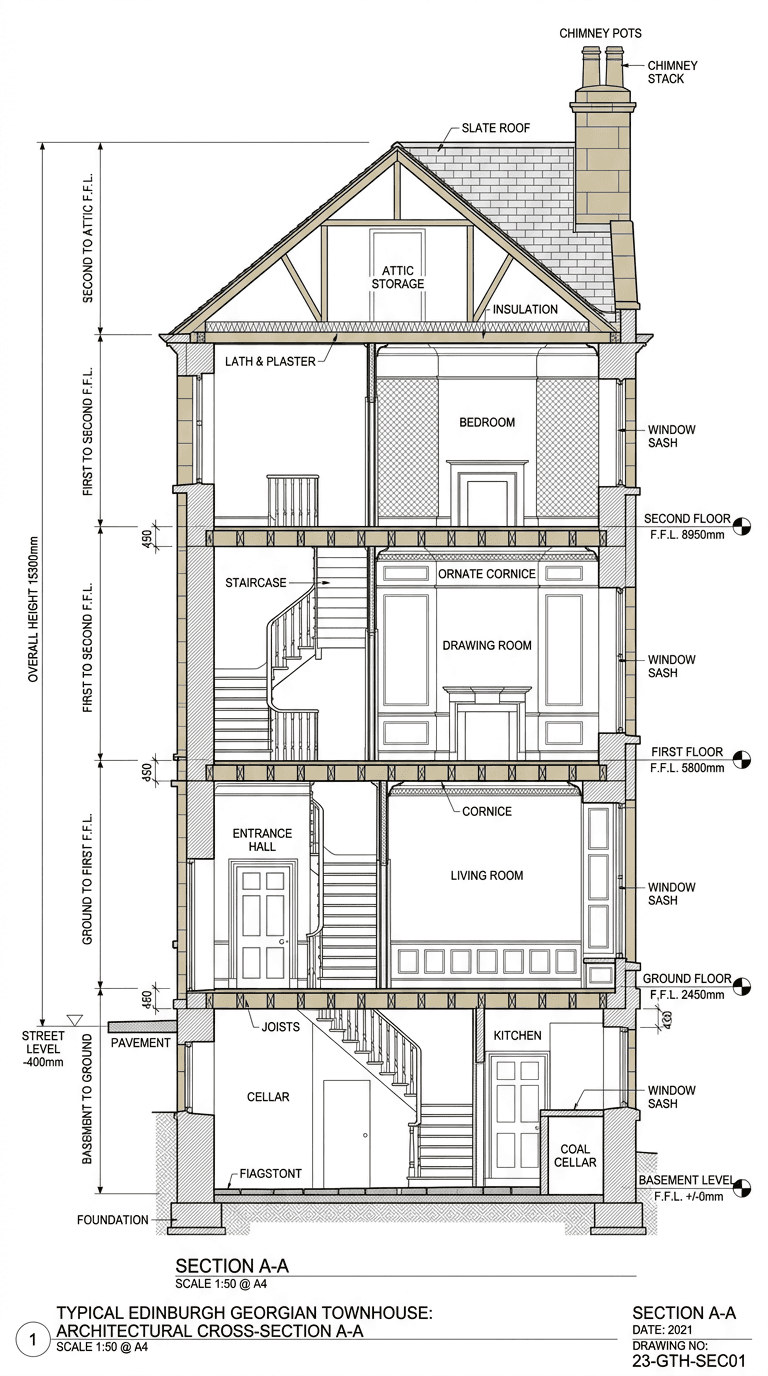
Elevations & Sections
Internal elevations and cross-sections extracted directly from point cloud data. Precise, measurable drawings ready for design and documentation.
What’s Included
- Internal wall elevations
- Cross-sections at any plane
- Ceiling heights & floor-to-floor dimensions
- Floor levels & datum references
Ideal For
Service 03
3D Point Clouds
Millions of precisely measured points captured by handheld LiDAR at 1–2 cm accuracy. Our AI optimises the point cloud data, reducing noise for clean, usable scans.
Delivery Formats
Ideal For

Service 04
RICS-Compliant Area Calculations
Gross Internal Area (GIA), Net Internal Area (NIA), and ITZA calculations prepared in accordance with the RICS Code of Measuring Practice, 6th Edition. Delivered as part of your floor plan package or as a standalone service.
What’s Included
- GIA — Gross Internal Area
- NIA — Net Internal Area
- ITZA — In Terms of Zone A
- RICS 6th Edition compliance
- Tabulated area schedules
Ideal For
Service 05
Online Portal Access
Every client gets cloud-based portal access as standard. View your survey data, share with your team, and download deliverables — all from your browser.

AI-Enhanced Floor Plans
View clean, auto-generated floor plans with room labels and dimensions.
3D Point Cloud Viewer
Explore your building in 3D directly in the browser — no software needed.
Photo Walkthrough
Browse geotagged photos linked to the floor plan for full context.
Export Formats
Download DXF, DWG, PDF, E57, LAS, and PCD files whenever you need them.
Team Sharing
Invite architects, contractors, and stakeholders to view project data.
Start Your Project
Get a Free Quote in 2 Hours
Tell us about your project. We’ll send a fixed-price quote within 2 hours during business hours. No obligation.