Edinburgh & Central Belt
Your Building Surveyor in Edinburgh
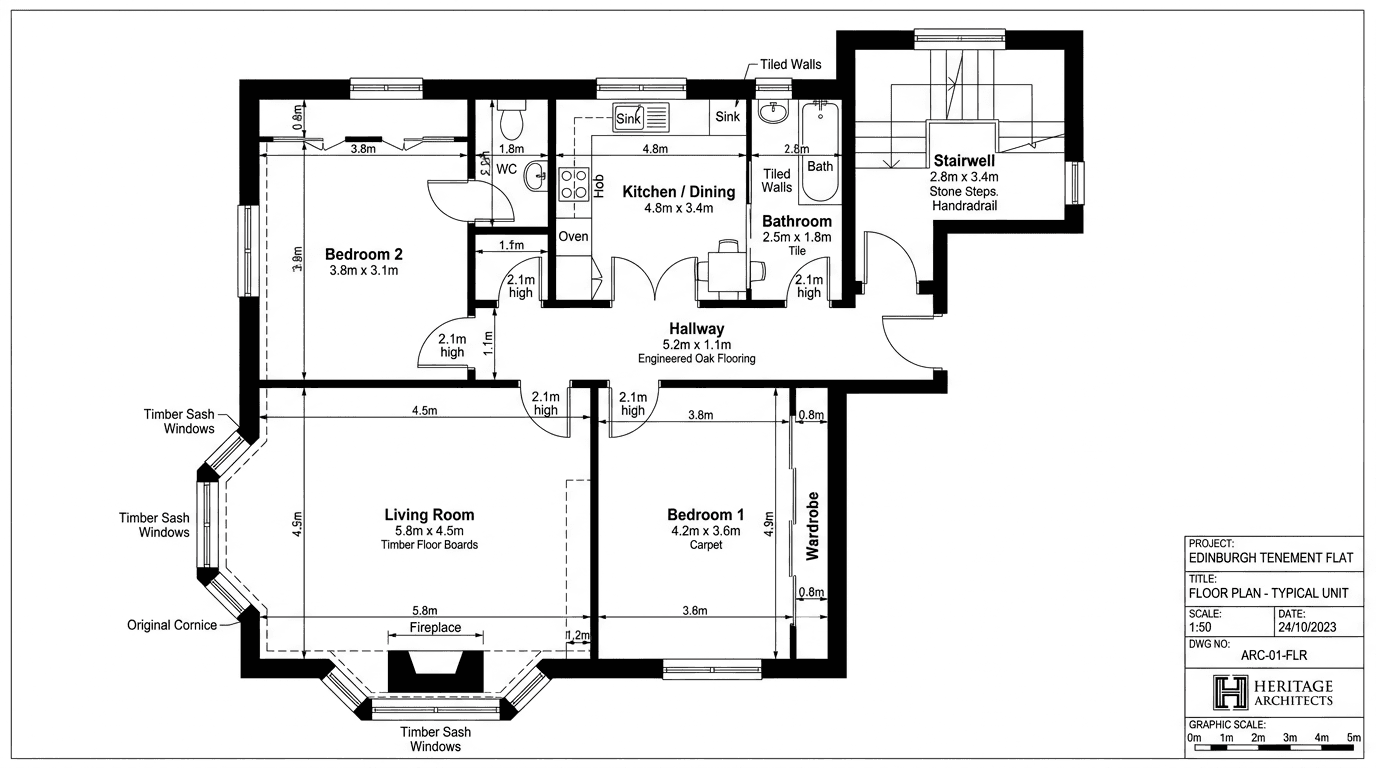
AI-powered LiDAR scanning delivers RICS-grade floor plans, elevations, and sections within 24 hours — not weeks.

20 min
Average scan time
24 hrs
Floor plan delivery
1–2 cm
Point cloud accuracy
Accurate Building Drawings Without the Wait
Traditional surveys take weeks. Multiple site visits. Waiting for drawings. Chasing revisions. Your project stalls before it even starts.
We walk through your building with a handheld LiDAR scanner. 20 minutes later, AI-generated floor plans are processing. 24-hour delivery in DXF, DWG, and PDF.


Survey Solutions for Every Building Type
RICS-grade floor plans and sections delivered within 24 hours. Start designing sooner with accurate as-built drawings in DXF, DWG, and PDF. White-label surveys available — your branding, our scanning and processing.

Three Steps to Your Measured Drawings
We Scan
We visit your property with a handheld LiDAR scanner. A typical residential scan takes just 20 minutes.
AI Processes
Onboard AI detects walls, doors, and windows automatically, generating draft floor plans from the point cloud. Our team then reviews and refines every drawing.
You Receive
CAD-ready floor plans in DXF, DWG, and PDF within 24 hours, plus portal access to your point cloud data.
What You Get

DXF, DWG, and PDF with room labels, dimensions, and GIA calculations.
Explore a Point Cloud
Loading 3D viewer...
Transparent Pricing
No hidden costs. Every quote includes site visit, scanning, AI processing, CAD cleanup, and delivery.
Residential Floor Plans
From £400
Single floor, standard residential
Full Residential Survey
From £1,000
Floor plans, elevations, and sections
Commercial Survey
From £2,500
Offices, retail, and mixed-use


Edinburgh & the Central Belt
Based in Edinburgh, we cover Glasgow, Stirling, Falkirk, Livingston, Dunfermline, and surrounding areas. If you are within an hour of Edinburgh, we can be on site fast.
Online Portal Access
Every client gets portal access — view AI-enhanced plans, explore point clouds in 3D, and download files in any format.
Frequently Asked Questions
How long does a measured building survey take?
A typical residential property takes around 20 minutes to scan. Larger commercial buildings take 1–3 hours depending on size and complexity. Floor plans are processed and delivered within 24 hours.
How much does a measured building survey cost in Edinburgh?
Residential floor plans start from £400. A full residential survey (floor plans, elevations, sections) starts from £1,000. Commercial surveys start from £2,500. Every quote includes the site visit, scanning, AI processing, CAD cleanup, and delivery.
What format are the survey drawings delivered in?
Floor plans and drawings are delivered in DXF, DWG, and PDF formats. Point cloud data is provided in E57 and LAS formats. You also get access to our online portal to view and download your files.
Is the survey accurate enough for planning applications?
Yes. Our surveys meet RICS standards at 1:100 scale with 1–2 cm point cloud accuracy. They are accepted by local authorities for planning applications, building warrants, and listed building consent.
What areas do you cover?
We are based in Edinburgh and cover the entire Central Belt including Glasgow, Stirling, Falkirk, Livingston, Dunfermline, and surrounding areas. If you are within an hour of Edinburgh, we can be on site fast.
Start Your Project
Get a Free Quote in 2 Hours
Tell us about your project. We’ll send a fixed-price quote within 2 hours during business hours. No obligation.